飲食店開業・深夜営業許可サポート 東京・神奈川・千葉・埼玉対応の行政書士事務所
  • ホーム
  • 飲食店営業許可
  • 深夜酒類提供飲食店営業
  • 喫煙について
  • よくある質問
  • ご契約までの流れ
  • サービス内容・料金一覧
  • 事務所概要
  • お客様の声
  • お問い合わせ

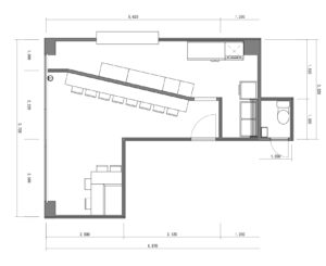
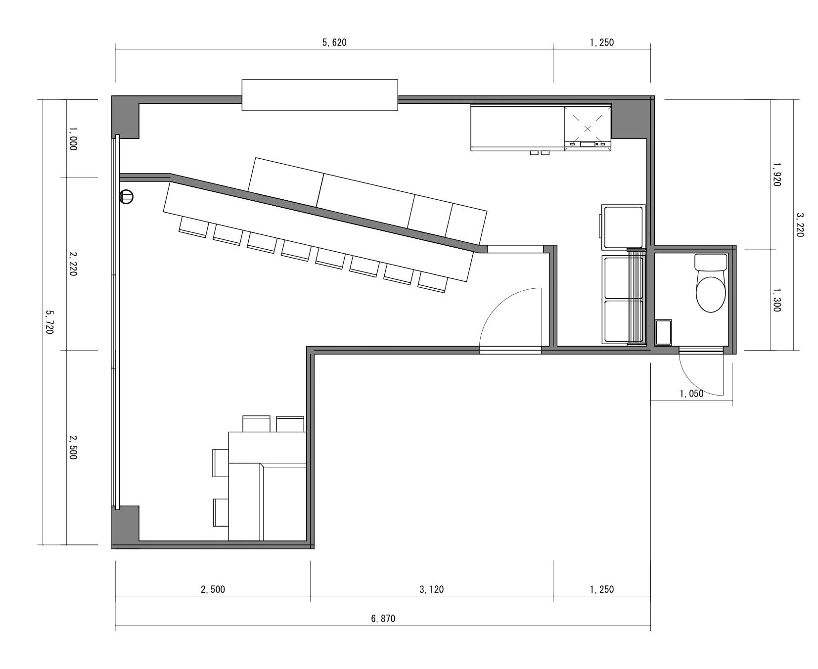
施工図面サンプル

2025.10.19

飲食店開業・深夜営業許可サポート 東京・神奈川・千葉・埼玉対応の行政書士事務所
飲食店開業・深夜営業許可サポート 東京・神奈川・千葉・埼玉対応の行政書士事務所
ホーム
深夜営業許可の図面作成 25,000円~

 

電話受付時間
平日9:00~18:00

スマートフォンからの電話発信はこちら

※折り返しのご連絡は携帯電話(090-2222-2176)よりかけさせていただく事がございます。

 

ご相談希望の際は、電話・LINEまたは問い合わせフォームよりご連絡をお願いします。

 

※電話受付時間外につきましては、LINEまたは問い合わせフォームよりご連絡ください。確認次第すぐに折り返しのご連絡をいたします。

LINE・問い合わせフォームからのご連絡は、24時間 365日 受け付けています。

 

岩瀬勇祐行政書士事務所

〒351-0005 埼玉県朝霞市根岸台6丁目2−35 イーストパーク210

 

飲食店営業許可

深夜酒類提供飲食店営業

風営法と深酒営業 1

風営法と深酒営業  2

深酒営業と用途地域

ガールズバーの営業に必要な許可とは

バー・スナック・居酒屋の開業に必要な許可とは

飲食店はどんな時に深夜営業の許可が必要なのか

遊興について

喫煙目的室の設置について

喫煙可能室の届出について

無届営業の罰則について

業務の記録

深夜営業許可について解説

深夜営業許可に必要な図面について

シーシャバー開業に必要な許可とは

令和3年6月以降の飲食店営業許可【バー・スナックなど】

従業者名簿とは 深夜酒類提供飲食店営業上の注意点

東京都内で深夜営業許可手続きをする際の注意点

ダーツバー開業に必要な許可とは

スロットバー開業に必要な許可とは

たばこ出張販売許可とは【バー・スナック店内のたばこ販売について】

深夜営業許可を行政書士に依頼するメリットとは

バー・スナックの飲食店営業許可【簡易な営業】について

深夜営業許可【名義変更の手続きについて】

東京都の深夜営業許可【必要書類について解説】

神奈川県の深夜営業許可【必要書類について解説】

埼玉県の深夜営業許可【必要書類について解説】

千葉県の深夜営業許可【必要書類について解説】

飲食店で喫煙可能とするための条件とは

深夜営業許可【客用個室についての注意点】

深夜営業許可【カラオケを設置する際の注意点】東京都編

深夜営業許可【カラオケを設置する際の注意点】埼玉県編

深夜営業の許可証とは

深夜営業許可【用途地域証明書について解説】

深夜営業許可に自分で挑戦【届出書の書き方】

深夜営業許可に自分で挑戦【営業の方法の書き方】

飲食店営業許可の名義変更(譲渡)手続きについて

深夜営業許可の手続き費用について

【深夜営業許可】深夜酒類提供のメリット・デメリットを徹底解説!

【飲食店向け】深夜営業の許可条件を徹底解説!知っておきたいポイント

深夜営業の許可申請代行、丸投げで安心!料金と手続きの複雑さを解説

深夜酒類提供飲食店営業開始届出の代行。行政書士に頼むメリットは?

【深夜営業許可】相談は無料でできる?行政書士に頼むべき理由を解説

飲食店が深夜営業を行うための「深夜酒類提供飲食店営業届出」とは?手続きの流れ・費用・注意点まとめ

飲食店の客引き行為は法律で禁止?東京都・各区の規制を徹底解説

神奈川県で飲食店の客引き行為はどう規制されている?法律と条例まとめ

埼玉県で飲食店の客引きは違法?法律・条例・市ごとの規制まとめ

千葉県で飲食店の客引きはどこまでNG?法律・県条例・主要市の規制まとめ

深夜営業許可(深夜酒類提供飲食店営業届出)とは?

深夜酒類提供飲食店を廃業する際の「廃業届」手続きガイド|提出先・必要書類・注意点まとめ

深夜酒類提供飲食店営業の違反と罰則|知らないと危険な風営法のポイント

【保存版】バー開業に必要な営業許可申請マニュアル|行政書士が解説

用途地域と飲食店営業|深夜営業を始める前に知っておきたい基礎知識

深夜営業の飲食店と騒音対策|オーナーが知っておきたいポイント

【飲食店オーナー必見】深夜営業で必要なHACCP(ハサップ)対応とは?

居酒屋は深夜営業の許可(届出)が必要か?行政書士がわかりやすく解説

 

LINEからの問い合わせはこちら↓
友だち追加

飲食店開業・深夜営業許可サポート 東京・神奈川・千葉・埼玉対応の行政書士事務所
  • ホーム
  • 飲食店営業許可
  • 深夜酒類提供飲食店営業
  • 喫煙について
  • よくある質問
  • ご契約までの流れ
  • サービス内容・料金一覧
  • 事務所概要
  • お客様の声
  • お問い合わせ
© 2018 飲食店開業・深夜営業許可サポート 東京・神奈川・千葉・埼玉対応の行政書士事務所.