現地測量が不要な場合、25,000円~ の金額で深夜営業許可の図面一式を作成致します。
こちらのサービスは東京都・千葉県・神奈川県の全域対応可能です。埼玉県については対応しておりません。申し訳ございません。
※こちらのサービスをご利用いただく際は施工図面が必須となります。施工図面がお手元に無い場合はリンク先のサービス内容をご検討ください。
ご用意いいただく書類等
現地測量不要で図面作成をご希望の場合、以下のご用意をお願いします。
店舗の施工図面
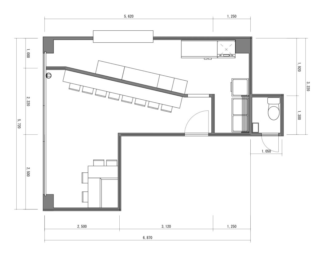
内装工事等を行った際の詳細な図面です。図面には壁などの寸法(m表示)の情報が記載されている必要があります。
⇩施工図面のサンプル

家具の寸法および設置場所の情報
客室に設置してある家具の寸法が必要になります。「縦・横・高さ」の情報を手書きで構いませんので、データにまとめてください。また、設置場所を施工図面に書き入れてください。
※送っていただくデータは手書きで構いません
音響・照明図の情報
音響・照明機器の設置場所を施工図面上に書き入れてください。
音響機器の例(スピーカー・テレビモニター・カラオケ機器・オーディオアンプなど)
照明の種類の例(ダウンライト・スポットライト・ペンダントライト・ブラケットライトなど)
※送っていただくデータは手書きで構いません
以上の情報をご用意いただければ、現地測量をせずに図面作成が可能です。ご希望の場合は、LINEまたは問い合わせフォームから図面情報を送ってください。
内容を確認の上、見積り金額を送らせていただきます(見積り作成のために送っていただくデータは写真データで構いません)。
おおよその金額は以下の通りです。
| 店舗面積 | 金額 |
| ~ 50㎡ | 25,000円 |
| 50~100㎡ | 30,000円 |
| 100~150㎡ | 35,000円 |
| 150~200㎡ | 40,000円 |
※複数フロアや特殊な構造の建物の場合は、手数料を上乗せさせていただく場合があります。
飲食店営業許可・深夜営業許可手続きはお任せください
・スピード納品 ご契約から2日以内に納品可能
・居酒屋・バーなどの深夜営業届出に必要な図面作成 ➡ 40,000円 ~
・事前調査から警察署へ届出までのフルサポート ➡ 70,000円 ~
※折り返しのご連絡は携帯電話(090-2222-2176)よりかけさせていただく事がございます。
対応地域
【東京都】
千代田区、台東区、文京区、中央区、足立区、荒川区、板橋区、江戸川区、大田区、葛飾区、北区、江東区、品川区、渋谷区、新宿区、杉並区、墨田区、世田谷区、豊島区、中野区、練馬区、港区、目黒区、 昭島市、あきる野市、稲城市、青梅市、清瀬市、国立市、小金井市、国分寺市、小平市、狛江市、立川市、多摩市、調布市、西東京市、八王子市、羽村市、東久留米市、東村山市、東大和市、日野市、府中市、福生市、町田市、三鷹市、武蔵野市、武蔵村山市
【神奈川県】
横浜市(鶴見区・神奈川区・西区・中区・南区・港南区・保土ケ谷区・旭区・磯子区・金沢区・港北区・緑区・青葉区・都筑区・戸塚区・栄区・泉区・瀬谷区)、川崎市、厚木市、大和市、海老名市、座間市、綾瀬市、横須賀市、三浦市、平塚市、藤沢市、茅ヶ崎市
【千葉県】
千葉市(中央区・花見川区・稲毛区・若葉区・緑区・美浜区)、市原市、市川市、船橋市、習志野市、八千代市、浦安市、松戸市、流山市、木更津市、君津市、富津市、袖ケ浦市
【埼玉県】
さいたま市(西区・北区・大宮区・見沼区・中央区・桜区・浦和区・南区・緑区)、上尾市、朝霞市、川口市、越谷市、志木市、草加市、所沢市、戸田市、新座市、富士見市、ふじみ野市、三郷市、八潮市、吉川市、和光市、蕨市
※上記以外の地域にて手続を希望される方も一度ご相談ください。

